Piso en venta en Calle Génova

Piso en venta en Madrid (DISTRITO CHAMBERÍ )

Madrid (DISTRITO CHAMBERÍ )

Ref. 1019 164 m2 3 3 5
venta: 2.050.000 

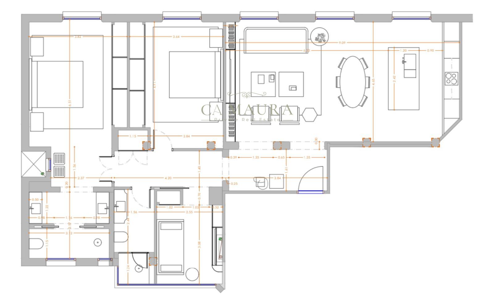
Ca Maura selecciona y presenta al mercado esta vivienda exterior situada en una quinta de una finca clásica de 1960, con ascensor y portero, ubicada en el distrito Chamberí, en el barrio de Almagro, una de las zonas más codiciadas de Madrid. Con orientación este y cinco amplios ventanales a la calle, disfruta de una excelente entrada de luz natural a lo largo del día, generando una atmósfera luminosa y abierta en todas las estancias.


La propiedad se presenta actualmente demolida, ofreciendo una oportunidad única para diseñar y personalizar la vivienda a medida. Se comercializa junto con tres propuestas de reforma, pensadas para optimizar al máximo sus 164 m² y adaptarse a distintos estilos de vida, permitiendo configurar una amplia zona social con salón, comedor y cocina integrados, así como una zona privada versátil con varios dormitorios y baños.


La finca dispone de una amplia terraza comunitaria, un valor añadido poco habitual en la zona, ideal como espacio exterior de uso y disfrute. La vivienda cuenta además con sistema de aire acondicionado y calefacción, garantizando confort durante todo el año.



En Ca Maura acompañamos de forma cercana la compra, venta y alquiler de propiedades seleccionadas con criterio. Además de nuestra cartera, gestionamos oportunidades off-market para quienes valoran la discreción. Para más información o concertar una visita, estaremos encantados de atenderle.

Índice de alquiler

Precio Venta 2.050.000 €
Precio/m² 12.500
Año de construcción 1960
Construidos 164 m2
Dormitorios 3
Baños 3
Calefacción INDIVIDUAL GAS NATURAL
Altura/Planta 5
Carp. Exterior VENTANAS PVC
Orientación Este
Estado A REFORMAR
Ascensor
Aire acondicionado
Zonas comunes
Calificación Energética En trámite
Luz
Gas
Agua
Conserje
Vigilancia accesos
La dirección del inmueble es aproximada.

Inmuebles similares:

 
Ref. 1026  103 m2  2  2

 103 m² · En proceso de reforma · 2 hab · 2 baños · Ascensor · Portero/Conserje · Aire acondicionado · Calefacción central · Trastero

1.750.000 €
 
Ref. 1018  212 m2  3  3

212m² · Reforma integral a estrenar · 3 hab · 3 baños · Ascensor · Aire acondicionado · Calefacción individual Gas

2.190.000 €
Solicita información

Si deseas más información sobre esta propiedad, por favor, rellena el formulario: